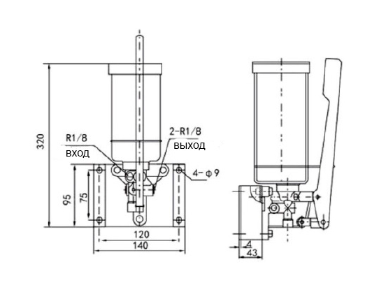
Ручной насос LGS-08 представляет собой насос для пластичной смазки плунжерного типа, который может напрямую подавать смазочный материал, а также может распределяться в несколько точек через питатели. Подходит для смазывания малого и среднего механического оборудования.
Технические характеристики:
- емкость резервуара: 0,8 см3;
- расход за один качек: 2 см3;
- максимальное давление: 10 Мпа;
- класс консистентной смазки: NLGI 00 и 000;
- выход: М10х1 (трубка 6 мм).
|
Вес, кг
|
0.92 |