Опора вала ARTNC SK8 – алюминиевая опора для крепления гладких и линейных валов диаметром 8 мм. Предназначена для поддержки вала на заданной высоте, параллельно плоскости крепления.
Характеристики: легкий прочный сплав, высокая точность, простота установки.
Крепление: вал фиксируется прижимным винтом, опора крепится к основанию двумя болтами.
Применение: ЧПУ, 3D-принтеры, станки, системы автоматизации.
Преимущества: надежная фиксация, долговечность, компактность, устойчивость к вибрациям.
|
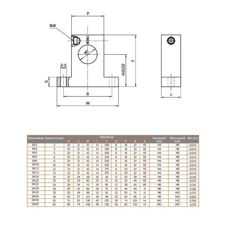
Диаметр вала, мм
|
8 |
|
Диапазон рабочих температур, °C
|
от -30 до +982 |
|
Длина, мм
|
44 |
|
Ширина, мм
|
16 |
|
Высота, мм
|
48 |
|
Вес, кг
|
0.045 |